Have you dreamt about owning a home in Dudley

Maribeth Marzeotti Details

Lamacchia Realty, Inc.

Cell: (508) 864-8163

Request Information

Email Sent!

  • Submit

Photos

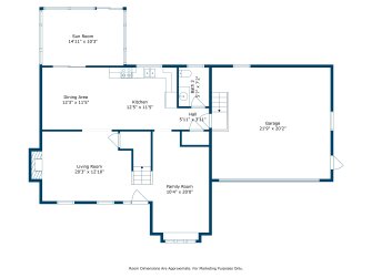
Floor Plans

Move your mouse over the floor plan to tour the home. Hide

Slideshow

Property Description

Have you dreamt about owning a home in Dudley? The opportunity is here! Don't miss this lovingly maintained Colonial home awaiting new owners! Enter to a warm & inviting living rm, complete w/ a fireplace w/ custom-made glass doors & screens that easily remove for convenient cleaning. The family rm offers a box window with window seat & is the perfect place for entertaining! The kitchen is generously packed with cabinets & showcases stainless steel appliances. Sliders lead to the sunlit haven of a Brady-built sunroom, featuring expansive windows that capture the beauty of the wooded backyard—a sanctuary of natural light perfect for relaxation! Ascend to the 2nd flr to discover the spacious owner's suite, a private retreat w/ a large walk-in closet & an en-suite bath. 2 addt’l good-sized bedrooms complete the package! Recent updates, including a new roof in 2022 & fridge 2023. The exterior delights with a spacious yard, an updated AZEK farmer's porch, and a patio area! Welcome Home!

Pricing:Offered at $509,900
Property Type:Single Family Home
Bedrooms:3
Bathrooms:
Size:2,000 sq ft
MLS #:73181028
Year Built:2000
Floors:2
Parking:2 car garage
Lot Size:0.54 acres

Map

Map Loading...

Share Virtual Tour

Available Through

Maribeth Marzeotti
Company: Lamacchia Realty, Inc.
Office: (508) 425-7372
Cell: (508) 864-8163
Fax: (617) 321-4128