This well maintained 3-bed, 2.5-bath colonial

Karoline Willis Details

Lamacchia Realty Inc

Cell: (508) 510-7624

Request Information

Email Sent!

  • Submit

Photos

Floor Plans

Move your mouse over the floor plan to tour the home. Hide

Slideshow

Property Description

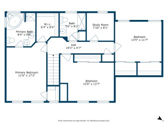
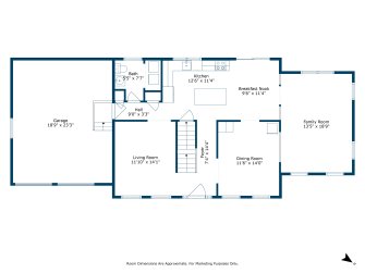
Welcome to your new humble abode! This well maintained 3-bed, 2.5-bath colonial is set back from the road and rests on a sprawling 1.61-acre lot on a cul-de-sac! As you enter, you're greeted by a welcoming foyer. To the right, a formal dining room awaits. Adjacent is the dine-in kitchen, boasting stunning granite countertops, an island with breakfast bar, recessed lighting, stainless steel appliances, and a slider leading to the backyard. The sunlit family room is perfect for cozy movie nights or unwinding. Down the hall, discover a convenient half bath with first-floor laundry and a spacious living room. Upstairs, retreat to your primary bedroom featuring a walk-in closet and a full bath with a jacuzzi tub. Two additional well-appointed bedrooms, an office, and another full bath provide ample space for all your needs. Enjoy summer gatherings in your private fenced backyard with a charming patio. New roof 2023, newer furnace, & water heater! A two-car garage completes this package!

Pricing:Offered at $675,000
Property Type:Single Family Home
Bedrooms:3
Bathrooms:
Size:3,044 sq ft
MLS #:73235528
Year Built:2002
Floors:2
Parking:2 car garage
Lot Size:1.61 sq ft

Map

Map Loading...

Share Virtual Tour

Available Through

Karoline Willis
Company: Lamacchia Realty Inc
Cell: (508) 510-7624