Super cute ranch!

Jessica Rizzo Details

Lamacchia Realty, Inc.

Cell: 413-212-2236

Request Information

Email Sent!

  • Submit

Photos

Floor Plans

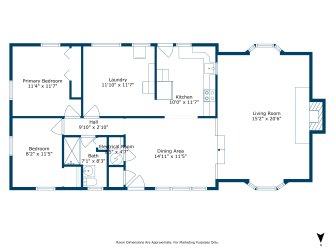
Move your mouse over the floor plan to tour the home. Hide

Slideshow

Property Description

Welcome to Bernard Avenue! This adorable and cozy home offers the perfect blend of comfort and style, featuring three bedrooms and an updated bathroom. The modern kitchen is equipped with stainless steel appliances and granite countertops. The inviting living room is perfect for relaxation, with a pellet stove to add warmth during the chilly months and offset heating costs. Step outside to discover a lovely flat yard with a storage shed. Home is located in the highly desirable southwest Pittsfield. Don't miss out on this charming home!

Pricing:Offered at $279,450
Property Type:Single Family Home
Bedrooms:3
Bathrooms:1
Size:1,216 sq ft
MLS #:244866
Year Built:1955
Floors:1
Lot Size:0.23 acres

Map

Map Loading...

Share Virtual Tour

Available Through

Jessica Rizzo
Company: Lamacchia Realty, Inc.
Cell: 413-212-2236