Well maintained & loved 1st level, 2 bedroom,1 bath condo

Isa Dragone Details

Lamacchia Realty

Cell: (781) 775-2415

Request Information

Email Sent!

  • Submit

Photos

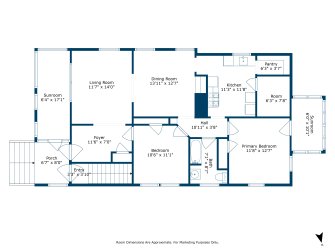
Floor Plans

Move your mouse over the floor plan to tour the home. Hide

Slideshow

Property Description

Awesome Watertown Location for this well maintained & loved 1st level, 2 bedroom,1 bath condo!!! Corner lot allows loads of natural light throughout this unit with beautiful hardwood flooring. Walk through the foyer into the living room with open floor plan into the dining area with built in cabinet. Enter the bright & cozy kitchen w/vintage sink & cabinets with an attached pantry area for your storage needs. Washer & dryer also included are located in the kitchen area for your convenience. New ceiling light/fans installed, 2024 Hot water heater install. Large right side section of unfinished basement designated for you for additional storage with interior and bulkhead access. Front and back private enclosed 3 season porches and appointed yard area to enjoy your surroundings in this quiet neighborhood that is in close proximity to all your shopping needs, restaurants, t-station, public transportation and Mass Pike without the downtown noise.

Pricing:Offered at $574,900
Property Type:Condo
Bedrooms:2
Bathrooms:1
Size:1,000 sq ft
MLS #:73311756
Year Built:1920
Floors:1
Parking:2 car garage

Map

Map Loading...

Share Virtual Tour

Available Through

Isa Dragone
Company: Lamacchia Realty
Office: 978-562-4248
Cell: (781) 775-2415