Meticulously maintained 2 bed 2 bath ranch

Kerryann Murphy Details

Lamacchia Realty

Cell: (508) 868-4943

Request Information

Email Sent!

  • Submit

Photos

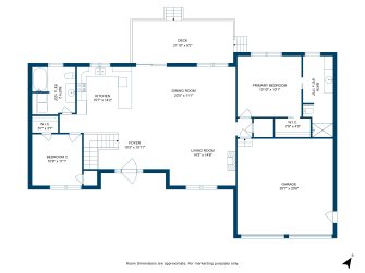
Floor Plans

Move your mouse over the floor plan to tour the home. Hide

Slideshow

Property Description

Meticulously maintained 2 bed 2 bath ranch with a 2 car attached garage is a stunning property set on 2 acres of beautifully landscaped land. Spacious foyer with coat closet is the perfect entry point to the home. Gleaming hardwood floors throughout the home give it an elegant and timeless feel, while the double slider access to the large deck provides ample natural light and easy access to the outdoor space. Open concept kitchen, living, and dining rooms make entertaining a breeze and create a welcoming atmosphere for guests. Two generous sized bedrooms are just down the hall. The primary boasts a cabinet packed en suite. Convenient 1st floor laundry in the full bath completes the level. Need more space? Full basement is ready for your vision and offers a pellet stove. Lower level also features a bonus room currently being used as a bedroom. Attached 2 car garage keeps you out of the elements and adds storage space! Unwind on the large back deck and take in the nature views! Property highlights include a whole house automatic generator, a Buderos furnace and a well water system boasts it own water purification system!

Pricing:Offered at $465,000
Property Type:Single Family Home
Bedrooms:2
Bathrooms:2
Size:1,502 sq ft
MLS #:4949910
Year Built:2006
Floors:1
Parking:2 car garage
Lot Size:2 acres

Map

Map Loading...

Share Virtual Tour

Available Through

Kerryann Murphy
Company: Lamacchia Realty
Office: 978-562-4248
Cell: (508) 868-4943