4 bedroom cape in Auburn.

Karole O'Leary Details

Cell: (774) 276-0693

Request Information

Email Sent!

  • Submit

Photos

Floor Plans

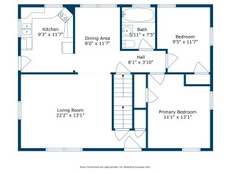
Move your mouse over the floor plan to tour the home. Hide

Slideshow

Property Description

Fabulous lot, location and neighborhood for this 4 bedroom cape in Auburn. What a great place to build some sweat equity. Nice floor plan includes Living room, dining room, kitchen, 2 bedrooms and full bath all on the first floor. Arched doorways add a touch of charm and keep the space feeling open. Nice hardwood flooring throughout the home. The second floor has two large bedrooms as well as plenty of closet/storage space. Walk out basement has tons of potential. Heating system is recent. The deck off the kitchen leads to a level, private, tree lined back yard with endless potential. Convenient location with restaurants, shopping, Mass pike, 290, rt. 20 all minutes away. Welcome Home to the wonderful town of Auburn.

Pricing:Offered at $319,900
Property Type:Single Family Home
Bedrooms:4
Bathrooms:1
Size:1,274 sq ft
MLS #:73245137
Year Built:1950
Floors:2
Parking:2 uncovered spaces
Lot Size:0.2 acres

Map

Map Loading...

Share Virtual Tour

Available Through

Karole O'Leary
Cell: (774) 276-0693