Recently renovated 4bd 2ba dormered cape

Matthew Czepiel Details

Lamacchia Realty, Inc.

Cell: (413) 531-4287

Request Information

Email Sent!

  • Submit

Photos

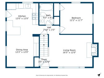
Floor Plans

Move your mouse over the floor plan to tour the home. Hide

Slideshow

Property Description

Rare opportunity to own this well thought out, recently renovated 4bd 2ba dormered cape with incredible attention to detail throughout! The tastefully renovated kitchen features quartz counters w/breakfast bar, stainless steel appliances, tiled backsplash, and coffee bar w/custom oak shelving. The living room is set just off the kitchen and framed by the whitewashed fireplace w/custom mantel. The stylish full bath w/tiled bath surround and bedroom complete the first floor. The 2nd floor is highlighted by a new bathroom w/tiled shower, 3 bedrooms, and newly installed carpet. The finished basement features luxury vinyl plank flooring, recessed lighting, and provides great additional living space. Fresh paint throughout, refinished hardwood floors, a new Navien on demand boiler, large yard, oversized 2 car garage, new paver walkway and landscaping complete this incredible home!

Pricing:Offered at $735,000
Property Type:Single Family Home
Bedrooms:4
Bathrooms:2
Size:1,800 sq ft
MLS #:73271857
Year Built:1966
Floors:2
Parking:2 car garage
Lot Size:0.65 acres

Map

Map Loading...

Share Virtual Tour

Available Through

Matthew Czepiel
Company: Lamacchia Realty, Inc.
Cell: (413) 531-4287