Enjoy the expansive backyard with a hardscaped patio!

Photos

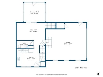
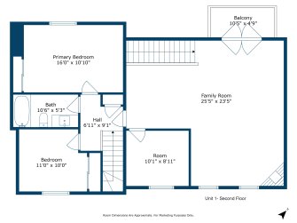
Floor Plans

Move your mouse over the floor plan to tour the home. Hide

Slideshow

Property Description

Don’t miss this exceptional opportunity to own a versatile multi-family property ideally located off Rt 111 with easy access to I-93, downtown Nashua,Rt 3, and more. Perfect for owner-occupants, investors, or multi-generational living, this home offers two spacious units, each with private entrances and driveways. Unit 1features a modern kitchen with custom cabinetry and stone countertops, a flexible dining/living area, screened porch, half bath, and direct access to a 2-car garage.Upstairs offers a sunlit family room with gas fireplace and balcony, two bedrooms, a full bath, and a bonus room perfect for a home office. Unit 2 includes an updated eat-in kitchen, living room, screened porch, and half bath on the main level, with two bedrooms and a full bath upstairs. With many modern updates, there's nothing to do butmove in and collect rent. Enjoy the expansive backyard with a hardscaped patio, ideal for entertaining, and 2.7 acres of trails and land to explore. This is a rare opportunityin today’s market—schedule your showing before it’s gone!

Pricing:Offered at $765,000
Property Type:Muti-Family
Bedrooms:4
Bathrooms:3
Size:2,670 sq ft
MLS #:5037278
Year Built:1980
Floors:2
Parking:2 car garage
Lot Size:2.76 acres

Map

Map Loading...