this 2,480 sq ft home offers flexibility

Photos

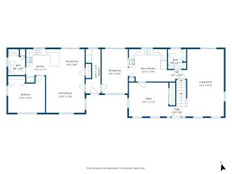
Floor Plans

Move your mouse over the floor plan to tour the home. Hide

Slideshow

Property Description

Spacious and well cared for by the original owners, this 2,480 sq ft home offers flexibility that’s hard to find. The main home features three bedrooms plus a fourth room that can easily be used as a flex room. An attached in-law apartment includes a private entrance and its own deck, ideal for extended family, guests, or additional living space.Set on a corner lot in the quiet, desirable North End of Fall River, this property offers a peaceful setting with minimal traffic and a setting that truly doesn’t feel like city living.Convenient to Route 24 North, the Fall River train station to Boston, and close to the well-regarded Frank M. Silvia Elementary School, this home combines space, versatility, and a location buyers love.

Pricing:Offered at $639,900
Property Type:Single Family Home
Bedrooms:4
Bathrooms:
Size:2,480 sq ft
MLS #:73470227
Year Built:1992
Floors:2
Parking:3 uncovered spaces
Lot Size:0.34 sq ft

Map

Map Loading...